
SIビル青山
SI.BLDG.AOYAMA
SI青山ビルについて
SIビル青山は、1964年竣工、地上8階地下3階建て、鉄骨鉄筋コンクリート造のビルです。青山通りに面した、絶好のロケーションです。東京メトロ銀座線「青山一丁目」駅徒歩1分です。エレベーター、個別空調、OAフロアを備えています。
SI青山ビルオフィス情報

建物詳細
所在地:東京都港区北青山1-3-6
竣 工:1969年4月
構 造:鉄骨鉄筋コンクリート造 耐震補強工事済
規 模:地上8階 地下3階
エレベーター:3基(内車両用1基)
延べ床面積:8743.14㎡
天井高:2,590mm
フリーアクセスフロア:50mm
床荷重:300㎏/㎡
コンセント容量:57VA/㎡
24時間対応セキュリティ機械警備
フロア詳細

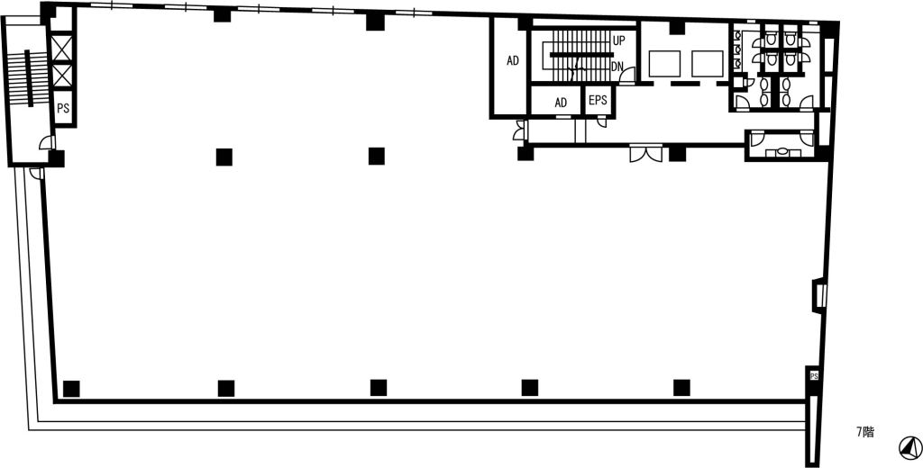
7階 平面図

8階 平面図

B2階 平面図

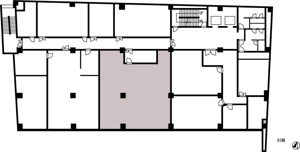
B3階 平面図


募集要項
(現在募集中)
| 賃貸面積 (㎡) | 坪 | 賃料(円) @単価(円/坪) | 共益費 @単価(円/坪) | 賃料+共益費 ※単価(円/坪) | 保証金 賃料の10ヶ月 | 入居 可能日 | |
| 7F | 668.96 | 202.36 | 相談 | 相談 | 相談 | 相談 | 相談 |
| 8F | 665.00 | 201.16 | 相談 | 相談 | 相談 | 相談 | 相談 |
| B3F倉庫 | 145.13 | 43.90 | 相談 | 相談 | 相談 | 相談 | 相談 |
| B2F倉庫 | 41.44 | 13.70 | 相談 | 相談 | 相談 | 相談 | 相談 |
- 7f.8F一括、BF倉庫 駐車場相談可
- 定期賃貸借5年
アクセスマップ
- 銀座線・半蔵門線・都営大江戸線 青山一丁目駅 1分
- 銀座線 外苑前駅 6分
- JR中央線 信濃町駅 12分

周辺施設情報
| コンビニ | ファミリーマート/青山一丁目駅店/260m(徒歩4分) セブンイレブン/港区南青山2丁目/190m(徒歩2分) |
| 郵便局 /銀行 | 郵便局/ATM ファミリーマート青山ツインビル店内出張所/300m(徒歩4分) [ATM]平日0:05~23:55、土曜0:05~23:55、日曜0:05~23:55 イーネット/ファミリーマート北青山一丁目/ [営業時間]0:00-24:00/36m(徒歩1分) |
| 飲食店 | 森のビアガーデン/バーベキュー店/17時00分~22時00分/800m(徒歩10分) 魚がし厨房湊屋 飯田橋店/海鮮料理店/ 【月~金】11:30~14:30(L.O.14:00)、17:00~23:00(L.O.22:00、ドリンクL.O.22/800m(徒歩10分) |
| カフェ | ドトール/新青山ビル店/ [営業時間]平 日:07:00 – 21:00 土曜日:08:00 – 19:00 日 祝:08:00 – 18:00 [休業日]なし [備考]総席数:71 禁煙席:49 喫煙席:22/350m(徒歩4分) ムゥムゥコーヒーアンドガレット/11:00~翌3:00/150m(徒歩2分) |
| コインパーキング | トラストパーク/【ネットのみ予約可】TK南青山ビル [料金] 20分300円 [最大料金] [機械式] <月~土> 最大2200円 ※営業時間内 [平置き式] <月~土> 最大3200円 ※営業時間内 [機械式・平置ともに] <日・祝> 最大1500円 ※営業時間内 【宿泊料金】[機械式・平置ともに] 営業時間外 500円 ※営業時間外は入出庫できません [台数]79台 タイムズ駐車場/南青山2丁目 [料金] [月~土]通常料金 / 00:00-00:00 15分 400円 [日・祝]通常料金 / 00:00-00:00 15分 400円 [最大料金] [月~土]18:00-08:00 最大料金800円 08:00-18:00 最大料金3200円 [日・祝]08:00-18:00 最大料金1300円 18:00-08:00 最大料金800円 [台数]19 |
地域危険度

ビル青山浸水リスク

揺れやすさリスク

液状化リスク



管理会社
株式会社パワーコンサルティングネットワークス
HP: https://powercon.jp/company.html
[本社]
150-0001
東京都渋谷区神宮前6-12-20 J6Front 8F
TEL:03-5468-8808
FAX:03-5468-8804
[神奈川支店]
220-0004
神奈川県横浜市西区北幸2-1-22ナガオカビル6F
TEL:045-326-2838
FAX: 045-328-3780

































